Maps
See maps of each floor of the library including descriptions of what is available on each floor.
Lower Level
Image
                 
            - The Lower Level Reading Room is a group study area.
- George Deukmejian University Archives and Storage: Storage is not open to the public. Less frequently used library materials are kept here and listed in the catalog with the location STORAGE. If you need materials that are housed in Storage, please inquire at the Circulation Desk on the First Floor.
- Gerald M. Kline Innovation Space: The new I-Space houses several 3D printing devices in addition to other high-tech equipment- The Igloo - A 360° shared viewing immersive theater.
- Virtual Reality Room
- Immersive Design Research Lab
 
- Lactation Room: Room 012 - To access this room, get door code from the front desk.
- Accessible bathrooms are located through the doors on the West wall.
Items that were formerly located on the lower level that have moved:
- Audiobooks: ARE NOW AVAILABLE ONLINE, link to them via OneSearch.
- Current Newspapers: Current Periodicals Print newspapers and journals ARE NOW LOCATED ON THE FIRST FLOOR.
- Map Collections: General maps as well as topographic, road, subject-oriented, and geologic maps ARE NOW ACCESSIBLE BY ASKING AT THE FRONT DESK.
- Microforms: Microfilm, microfiche, and microcards are all ACCESIBLE BY ASKING AT THE FRONT DESK.
- Microform Reader/Printers: Machines where you can read, save (bring a flashdrive) and/or print ($0.10/page) copies of microforms ARE NOW LOCATED ON THE FIRST FLOOR
1st Floor
Image
                 
            - Reference Collection: This collection of print resources includes such things as encyclopedias, indexes, dictionaries, and almanacs. Reference books can be used in the library but cannot be checked out.
- Librarians at the Research and Information Desk: This is a great place to start your research. Librarians will assist you in determining research strategies for your project or paper and will assist you in selecting and using the Library resources.
- Main Entrance
- Circulation Desk: Check out books here. It is also the Library's Lost and Found. Come here to pick up materials that you requested from ORCA.
- Critics' Choice: Popular fiction and non-fiction available for check out.
- Caffeine Lab
- Spidell Technology Center: Computers in this area provide access to e-resources such as OneSearch, research databases, eBooks and online journals. They also include productivity software, such as Microsoft Office.
- Printers- there is a printing fee of 10 cents per page, copiers, a scanner and an add money machine are also available.
- Spidell 1 Classroom (Room 116) The room was a gift of Robert and Janet Spidell.
- Current Periodicals: Latest issues of journals, and magazines that are not available online.
- Current Newspapers: Print newspapers are organized by title and shelved near the Research and Information desk.
- Microform Reader/Printers: You can read, save (bring a flashdrive) and/or print ($0.10/page) copies of microforms.
- There are accessible bathrooms located in the coffee shop.
2nd Floor
Image
                 
            - The 2nd Floor Reading Room is a group study area and houses the Graduate Center, Graduate Center Offices, and the Thesis and Dissertation Office.
- The Articulation and Curriculum Assessment office is in Room 214.
- Children's Collection (Rooms 200 and 204) is a family friendly group study area. Our collection includes books and other materials for children and young adults.
- Book Stacks with call numbers A - GV include books on Philosophy, History, and Geography
- Mystery Collection is housed on the north wall of the Stacks area. This collection of paperback mysteries is arranged by the author's last name.
- Graphic Novels Collection is located on the east wall of the stacks area.
- CAL Docs and Federal Documents are government publications housed along the back walls of the stacks area.
- Index and Abstract Shelving houses our print indexes on the west wall of the stacks area.
- There are accessible bathrooms located in the west hallway.
3rd Floor
Image
                 
            - The 3rd Floor Reading Room is a group study area.
- Room 305 - Gerald Kline Instructional Room: Librarians teach instruction sessions for classes here.
- The Masback Science Fiction is housed in the 3rd Floor Reading Room. This collection of paperbacks is arranged by the author's last name.
- Book Stacks: Items with call numbers H - PQ are kept here. These represent many of the books on Law, Education, and Art.
- Special Collections & University Archives: This collection contains the University archives and other rare and valuable collections. During the Fall and Spring semesters this area is open Monday – Thursday 9:00 a.m. - 12:00 p.m. and 1:00 p.m. - 4:00 p.m., Friday 8:00 a.m. -12:00 p.m., or by appointment. Hours may vary during Winter and Summer sessions.
- There are accessible bathrooms located in the west hallway.
4th Floor
Image
                 
            - 4th Floor Reading Room is a quiet study area.
- Room 409 - Student Excellence Instructional Room . Librarians teach instruction classes in this room.
- BMAC Group Study Room: Room 410.
- Book Stacks: Items with call numbers PR - Z are kept here. Includes Literature, Science and Technology, Medicine, Military Science, and Information Science.
- Library Administration offices are on the 4th floor.
- There are accessible bathrooms located in the west hallway.
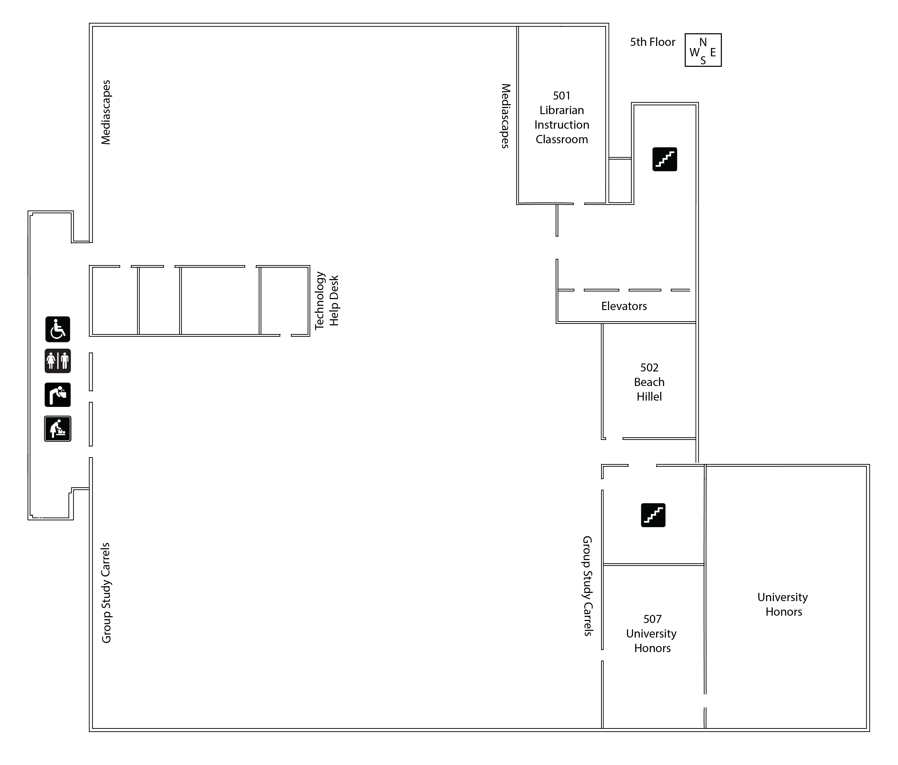
5th Floor
Image
                 
            - 5th Floor Reading Room is a group study area featuring comfortable furniture and power outlets at every seat.
- Mediascapes allow multiple devices to be projected onto a screen
- Group Study Carrels allow students to work together and display their personal devices on a group screen
- The Technology Help Desk is located on the west wall of the study area.
- Room 501 - Librarian instruction classroom
- University Honors is located in room 507.
- The Interfaith Center is located in room 502.
- There are accessible bathrooms located in the west hallway.
 
     
 
            